Neue Mitte — Remseck

Rathaus, Bürgersaal, Bibliothek
2014
Anerkennung

Mitarbeiter:
Ella Thumm-Hermann
Marina Folter
Maya Dubarova
Nicole Kögel

Erläuterungstext:
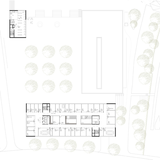
Idee: Drei einfache Baukörper
-bilden die 3 Funktionen ab
- bilden den Rathausplatz als neue Mitte
- öffnen den Platz zum Neckar
-sind durchlässig zur Rems
- bewältigen den Anstieg zum Brückenkopf
Das Rathaus schließt den Rathausplatz nach Süden zur Fellbacher Straße mit einem starken, 4-geschossigen Riegel ab. Der Haupteingang auf Platzniveau führt direkt in die 4-geschossige Halle mit dem Bürgerservice im Eingangsbereich. Eine offene Treppe erschließt alle Geschosse übersichtlich bis zum Trauzimmer mit Dachterrasse im 3. Obergeschoss. Zwei notwendige Treppenhäuser mit Aufzug, deren Türen erst im Brandfall schließen bieten den barrierefreien Zugang zu allen Rathausfunktionen, aber auch die notwendigen Rettungswege aus allen 3 Brandabschnitten. Ist mit einer 3-bündigen Anlage und innenliegender Halle nutzerfreundlich erschlossen.

Der Bürgersaal orientiert sich Richtung Rems, erlaubt jedoch auch in Längsrichtung über Bühne und Casino (bzw. Garderobe im OG) den Ausblick Richtung Neckar. An seinen Längsseiten öffnet sich der Saal einerseits zur Rems, andererseits über das verglaste Foyer hinweg zum Rathausplatz. Der kleine Saal schließt als Sitzungssaal unmittelbar ans Rathaus an. Er bietet innen eine kleine Galerie, die z.B. bei Gemeinderatssitzungen von Zuschauern, aber auch als Regieraum genutzt werden kann. Das Casino als Bühnen-Rückraum kann zusammen mit den Sammelgarderoben im OG und der Bühne vielfältig genutzt werden.

Die Bibliothek nutzt die Platzkante zum Neckar für ein breites Sockelgeschoss auf TG-Ebene, in dem sich Kinder- und Jugendbibliothek befinden. Am Brückenkopf wächst sie in Form eines kleinen Türmchens 6-geschossig in die Höhe und entkrampft den Anschluss der Brücke an den Platz. In den Obergeschossen bietet sich in den großzügig verglasten Ebenen dem Lesenden ein grandioser Ausblick auf die besondere topografische Qualität des Ortes.

Konstruktion, Material
Die 3 Gebäude sind einfache mineralische Kuben mit einem Sichtmauerwerk aus hellen Klinkern und eingeschnittenen Fenstern. Sie unterscheiden sich durch Größe und Formate dieser Öffnungen und dokumentieren so ihre unterschiedlichen Funktionen. Im Inneren kommt zum Mauerwerk und dem Sichtbeton der Decken und tragenden Wände als Material Holz hinzu
- beim Rathaus in den Flurtrennwänden und den Einbauten in der Halle
- Beim Bürgersaal in der abgehängten, nach akustischen Gesichtspunkten gestalteten Decke, und den Türanlagen
- Bei der Bibliothek in den notwendigen Einbauten, Regalen und Möbeln

ZURÜCK ZU WETTBEWERBE