Neubau Berufliche Schule B 14

auf dem Gelände des BBZ in Nürnberg
2009
1. Preis

Mitarbeiter:
Marina Folter
Philipp Hüve
Ella Thumm

Beurteilung durch das Preisgericht:
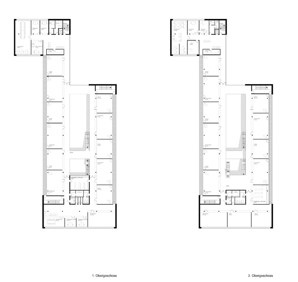
Die Qualität des Entwurfs wird neben seiner gut funktionierenden Grundrissstruktur vor allem auch in seiner städtebaulichen Antwort gesehen. So erlaubt die gewählte Gebäudeform einerseits die harmonische Fortführung und den baulichen Anschluss der linearen Bestandsgebäude an der Wieseler Straße. Zum anderen entsteht eine gut nutzbare Hoffläche zum BBZ und die bauliche Fassung des Olof-Palme-Platzes durch den kräftigen Kopfbau. Im Bereich des U-Bahnaufgangs ergibt sich darüber hinaus ein attraktiver, in seiner Dimension angemessener Eingangsplatz...

Die beiden Ost – West orientierten viergeschossigen Klassenriegel flankieren die gut dimensionierte Erschließungshalle, deren Stirnseite sich über alle Geschosse zum neuen Vorplatz hin öffnet, und dadurch nicht nur einen eindeutigen Eingang formuliert, sondern das neue Schulgebäude auch nach außen hin offen und einladend wirken lässt...

ZURÜCK ZU WETTBEWERBE